保利虹桥和著(售楼处) 首页 -保利虹桥和著销售中心 - 环境户型 价格地址楼盘详情配套电话交房时间尊龙凯时- 尊龙凯时官方网站APP下载

发布日期:2026-01-13 14:03:09 浏览次数:

  尊龙凯时,尊龙凯时官方网站,尊龙凯时APP下载您当前使用的浏览器版本过低,可能存在安全风险,建议升级浏览器,或者用以下浏览器浏览

  看房请务必致电与销售确认时间,仅预约客户可享受开发商内部优惠,专属新房预约奖!

  最新消息,保利·虹桥和著九年一贯制学校官宣落地!14号线地铁盘!「保利·虹桥和著」将推约94-128㎡3-4房!精奢国际住区!

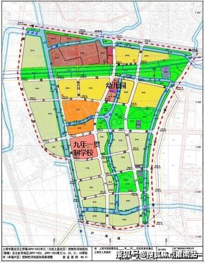
  12月19日,嘉定区与上海师范大学举行深化教育合作签约。上海师范大学拟在江桥镇倾力打造一所公办九年一贯制学校和一所公办幼儿园,为江桥北虹桥地区教育版图再添重彩。

  上师大附属九年一贯制落地选址北虹之星14-01地块,上师大附属幼儿园落地选址北虹之星08-06地块,还将纳入上海师范大学嘉定基础教育集团。

  此外,双方还将探索创新优秀干部的区校共育机制,上海师范大学将委派优秀年轻干部到嘉定区教育局或基层单位任职、挂职,为嘉定教育高质量发展注入新的活力。

  此举将大幅提升江桥地区的教育资源能级,完善北虹桥教育版图,为区域发展带来全新活力和发展机遇。

  消息一出,江桥家长群直接嗨翻!要知道,上师大基础教育集团综合实力更是强劲的很,“含金量”非常之高!

  近年来,上师大基础教育集团还先后在嘉定、松江、宝山、金山、青浦成立了教育子集团,助力各区域教育水平升级。

  有如此实力名校加持,不用多说,江桥的教学水平和高素质人口导入也将迈上新台阶,江桥区域将迎来新的未来!上师大资源的引入,是对上虹桥这片成片规划打造的城市更新区的价值高度的证言。

  对于购房者来说,优质教育为孩子的未来增添了一份确定性,作为片区内首发项目——保利·虹桥和著来说,更可谓是如虎添翼。

  地铁+学校,掌握当下现有的超强确定性;一手国际社区+进阶宅,掌握未来的超强发展上限。据悉,保利虹桥和著正在认购中,热势抢购,火热数据实力出圈!

  为了让“和著系”能在上海一炮而红,保利虹桥和著方方面面不惜成本拿出高标准配置,打造兼顾实用价值与情绪价值的作品。

  还未进入小区,远远就能看见约100米超长沿街酒店式落客礼仪大门,臻选贝金米黄石材打造,历久弥新,豪宅级的归家仪式感由此拉开。

  项目得建筑主体则采用高级灰+香槟金铝板线条,浅色臻石基座,融合以海派建筑元素,以经典三段式建筑,演绎东方式的低调奢华,L型折板+横向线条,将建筑的立面雕刻得更具层次与质感。

  整个社区打造了“两轴、三带、六园”的景观结构,环环相扣、交相辉映,约160m的中央花园轴,以翠影草坪为核心,串联尊享迎厅、水榭林涧、星际乐园、悠活天地等功能空间,将公园生活引入自家社区,还有五重归家礼序,以悦享门廊为核心,森活绿地无界相融,营造城市与家之间的松弛缓冲带,值得一提的是,整个园林设计中大量应用爱马仕灰大理石铺装,不惜成本提升质感。

  地下地上双精装入户大堂,为业主营造星级酒店式的礼遇,不仅地上入户大堂品质感十足,地下大堂也光影璀璨铺陈,电梯直达业主私享入户门厅,特别是双开门电梯+阳光梯厅的独创设计,给足了媲美千万级豪宅的尊崇感。

  保利·虹桥和著将推约94-128㎡3-4房,共计598套房源,目前售楼处&样板房已开放,预计将于本月入市。

  保利虹桥和著的户型设计格外出众,在精控面积的同时,通过优秀的格局设计,让空间效率大大提升,非常具有代表性的就是,充分利用了双开门电梯+阳光梯厅的优势,打造独立外玄关空间,营造归家仪式感的同时,也具有相当的实用价值

  “麻雀虽小五脏俱全”虽然相比一般百平米左右三房,该户型在建筑面积上缩减了约10㎡,但功能与尺度却不逊色,南北通透的飞机户型,没有过道浪费,因而保证了适宜的尺度感,LDKG一体化设计让几个功能区独立又互通,没有视觉遮挡也使得将空间感进一步拓展,阳台270°采光+多飘窗设计,打开更多的采光面与视野面,也大大提升了室内的通透感与舒适度,细节方面,次卫干湿分离的设计,提高了使用效率这对于小户型非常重要。

  建面约104㎡3房,在建面94㎡小3房优点上,又进一步升级了尺度感,约10.3m的南向面宽,为室内带来了出众的采光面和尺度感,这个户型无论从实用性、尺度感,亦或是视野、采光、私密性来说,都做得相当优秀。

  过去很长一段时间,由于土地端7090政策限制,新房产品绝大部分以百平米左右刚需产品为主,而保利虹桥和著此次将推出建面约128㎡稀缺舒适四房,本身就是一次难得的改善机遇,更何况该户型设计非常亮眼,四开间朝南设计,尽可能将更多阳光引入室内,主卧270度飘窗+南北通透大套房设计,同级别户型中十分罕见,充分满足舒适度和身份感。

  而在精装方面,保利虹桥和著不仅甄选国际知名品牌,而且配置内容相当丰富,举几个例子:

  比如厨房除了常规配置的厨电套件,还有洗碗机、末端净水装置、线性凉霸,以及定制橱柜等;又比如主卫,除了知名品牌龙头与台盆,还配置了智能马桶,可以说从业主真正生活的角度出发,精心营造品质生活。

  在功能布局上,整个江桥将呈现“一核聚能、一带润城、三轴联动、四区共荣”的北虹桥全新城市空间格局,积极承载虹桥国际中央商务区“大科创”功能,以创新经济、总部经济为特色,打造数字新经济、生命新科技、低碳新能源、汽车新势力产业链融合生态集群。

  在规划设计上,全新北虹桥开发地区遵循“以人为本、产城融合、多元包容、活力共享”的理念,对土地进行规划调整、整体提升、功能再造,着力打造“产城融合示范区、三生融合体验区、政企合作样板区”。

  东区规划约1400亩土地,整体架构为“一核、一带、两轴、多组团”,聚焦商务研发功能。

  目前,嘉定区已构建“1+4+N”产业政策体系,尤其在契合北虹桥发展的创新经济、总部经济等方面给予支持。

  近地铁嘉闵线乐秀路站(在建中),约3站直达虹桥(以政府规划为准),加速链接虹桥商务区、七宝、莘庄等重要区域。

  “三横三纵”的交通布局是上海核心区域的重要网络,三横包括曹安公路、京沪高速和沪嘉高速;三纵则由嘉闵高架、中环高架和外环高速构成。其中嘉闵高架作为上海“三横三纵”重要南北动脉,接轨虹桥商务区,高效连接上海各区。

  ①项目南向约6公里是江桥万达广场(约25万方,集购物、餐饮、娱乐、休闲等多功能于一体的大型商业综合体,西上海重要的商业地标之一),北向开车约6.5公里即达南翔印象城(约34万方,当下上海最大单一商业体)、南翔山姆会员店;项目东向1.5公里龙湖欢肆商业(在建)、维乐城,满足您一切消费需求。

  您可以通过14号线站就可以到达静安寺商圈,一步享受上海中心城区商业配套。

  ②本项目西侧规划商业约1.4万方、南侧社区中心约1.4万方(含菜场约2100㎡、运动中心约2600㎡),且包含“人民坊”示范项目。将会打造成为江桥的核心商业之一。保利·虹桥和著售楼处电话:【预约看房热线】保利·虹桥和著官方售楼处电话:【售楼处电话/地址】保利·虹桥和著售楼处电话:【开发商认证】

  声明:本文由入驻焦点开放平台的作者撰写,除焦点官方账号外,观点仅代表作者本人,不代表焦点立场。

  天誉蘭香(售楼处)官方电话上海天誉蘭香售楼中心前台电线天誉蘭香楼盘百科楼盘官方网站楼盘测评售楼中心电话来电预约看房

  上海象屿天誉蘭香售楼处电话,主打低密生态住区,涵盖洋房、叠墅、合院,均价71034元/㎡。

  象屿天誉蘭香营销中心官网│「象屿天誉蘭香」2026售楼处-楼盘价格/户型/地址/前台电话/环境/配套/交房时间/售楼处电话

  上海象屿天誉蘭香售楼处电话,主打低密生态住区,涵盖洋房、叠墅、合院,均价71034元/㎡,提供预约看房服务。

  象屿天誉蘭香(上海)售楼处电话_象屿天誉蘭香官方预约看房_楼盘详情-2026象屿天誉蘭香最新房价-户型图(官方发布)售楼处电话_预约看房

  上海象屿天誉兰香售楼处电话,主打低密生态住区,售楼处提供预约看房、户型图及周边信息。

  兰香湖贰号营销中心官网│「兰香湖贰号」2026售楼处-楼盘价格/户型/地址/前台电话/环境/配套/交房时间/售楼处电话

  上海闵行兰香湖贰号售楼处电话:【预约看房热线】兰香湖贰号售楼处电线【售楼处电话/地址】兰香湖贰号售楼处电话:【开发商认证】上海闵行兰香湖贰号别墅项目热销,主打210㎡法式双拼豪宅,售价约2300-2600万,售罄率高

  上海闵行兰香湖贰号(上海)售楼处电话_兰香湖贰号官方预约看房_楼盘详情-2026兰香湖贰号最新房价-户型图(官方发布)售楼处电话_预约看房

  上海兰香湖贰号别墅售楼处电话:(预约看房热线㎡户型,主打湖景与高端精装,总价约2300-2600万,售罄率高,优惠预约热线。

  崇明金悦府(售楼处)-2025官方网站【崇明金悦府崇明金悦府】营销中心地址详情_崇明金悦府楼盘欢迎您-周边配套-备案价-售楼处电线

  保利珺园(售楼处) 官方上海保利珺园售楼中心 - 环境 - 户型 - 价格 - 地址 - 楼盘详情 - 配套 - 电话 - 交房时间 - 配套 - 电话 - 交房时间

  苏州盛泽湖低密湖居国企联袂云湖璞院云湖璞院怎么样?图文详解户型价格地址周边配套

  上海奉贤天誉原墅2026销售中心│楼盘官网-天誉原墅售楼处电话/实时房价/户型/地址/周边配套/交房时间

  金地玖峯汇(营销中心)首页网站-金地玖峯汇销售中心(售楼处)-2025金地玖峯汇楼盘欢迎您-地址-价格-户型-小区环境-楼盘详情-交房时间-周边配套-售楼处电线

  苏州不限购新区地铁房朗诗雅乐云庭雅乐云庭怎么样?公园旁四大商业户型图位置配套价格

  2026新房推荐苏州高铁新城金地玖峯汇金地玖峯汇怎么样?第四代住宅带大露台图文详解楼盘笔记户型位置周边配套价格

  吴郡云熙府(营销中心)-苏州吴郡云熙府销售中心(售楼处)-吴郡云熙府楼盘欢迎您-地址-价格-户型-小区环境-楼盘详情-交房时间-周边配套-售楼处电线

  建发海阅首府(售楼处) 首页 - 建发海阅首府销售中心 - 环境 - 户型价格 - 地址 - 楼盘详情 - 配套 - 电话 - 交房时间 - 配套 - 电话 - 交房时间

  2026年知丘别墅(营销中心)官方网站-知丘别墅销售中心(售楼处)-知丘别墅售楼处电话-电话地址-价格-户型-小区环境-楼盘详情-交房时间-周边配套